Open Widget Area
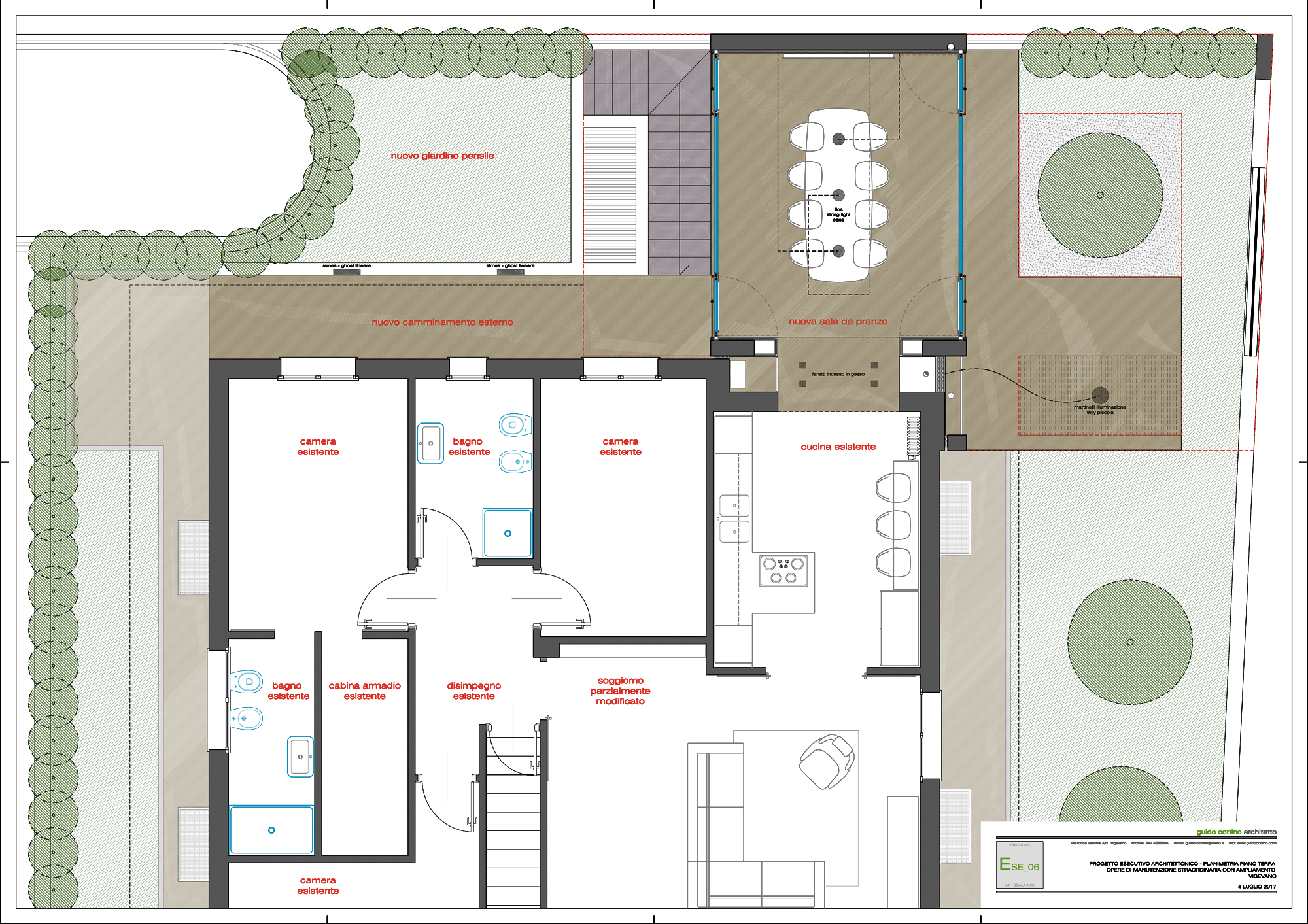
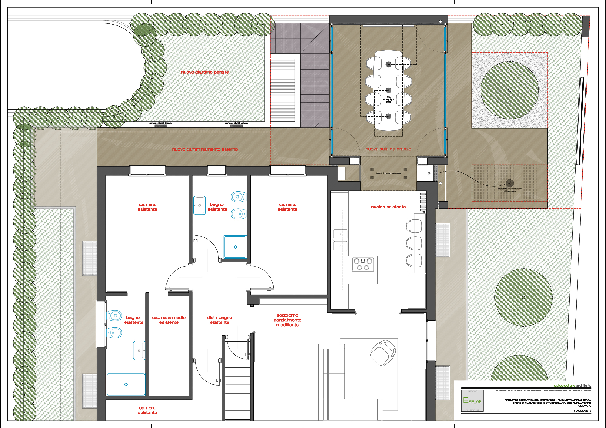
Casa #01_2018 – Ampliamento Lato Sud – 01