Open Widget Area
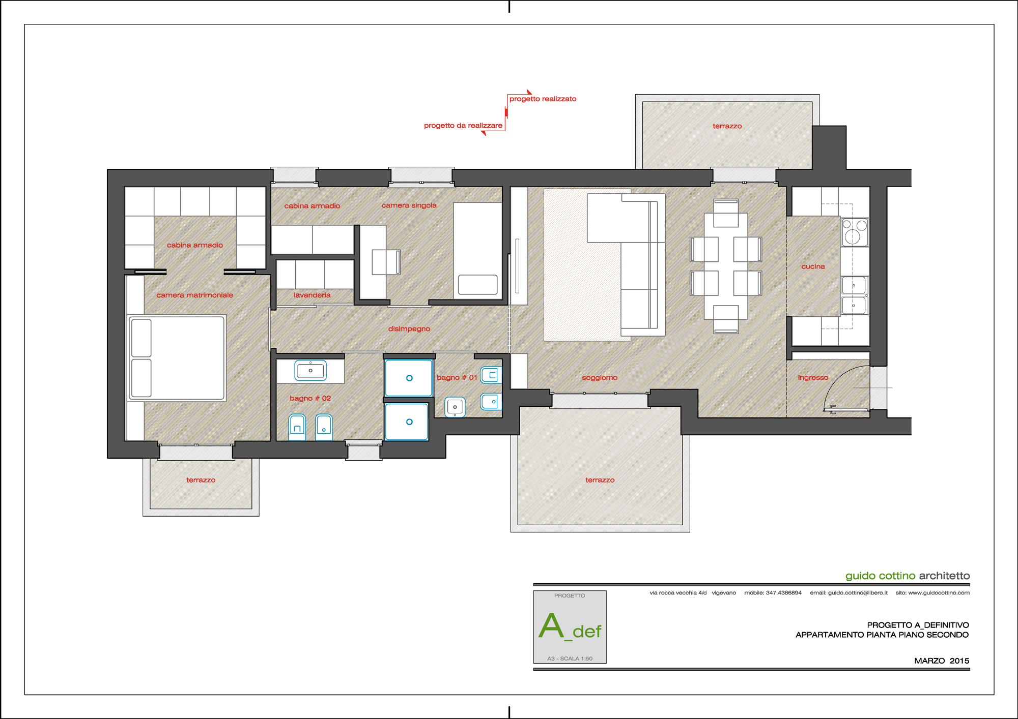
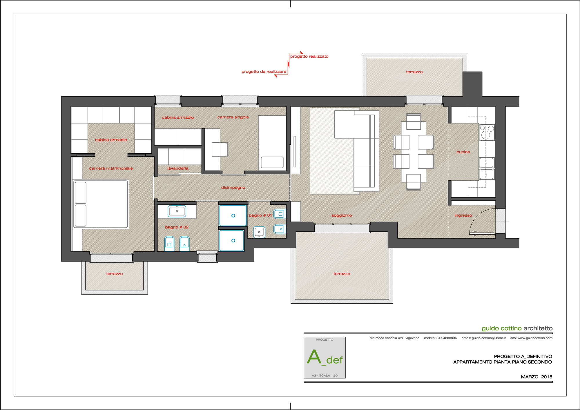
Casa #01_2015 – Soggiorno