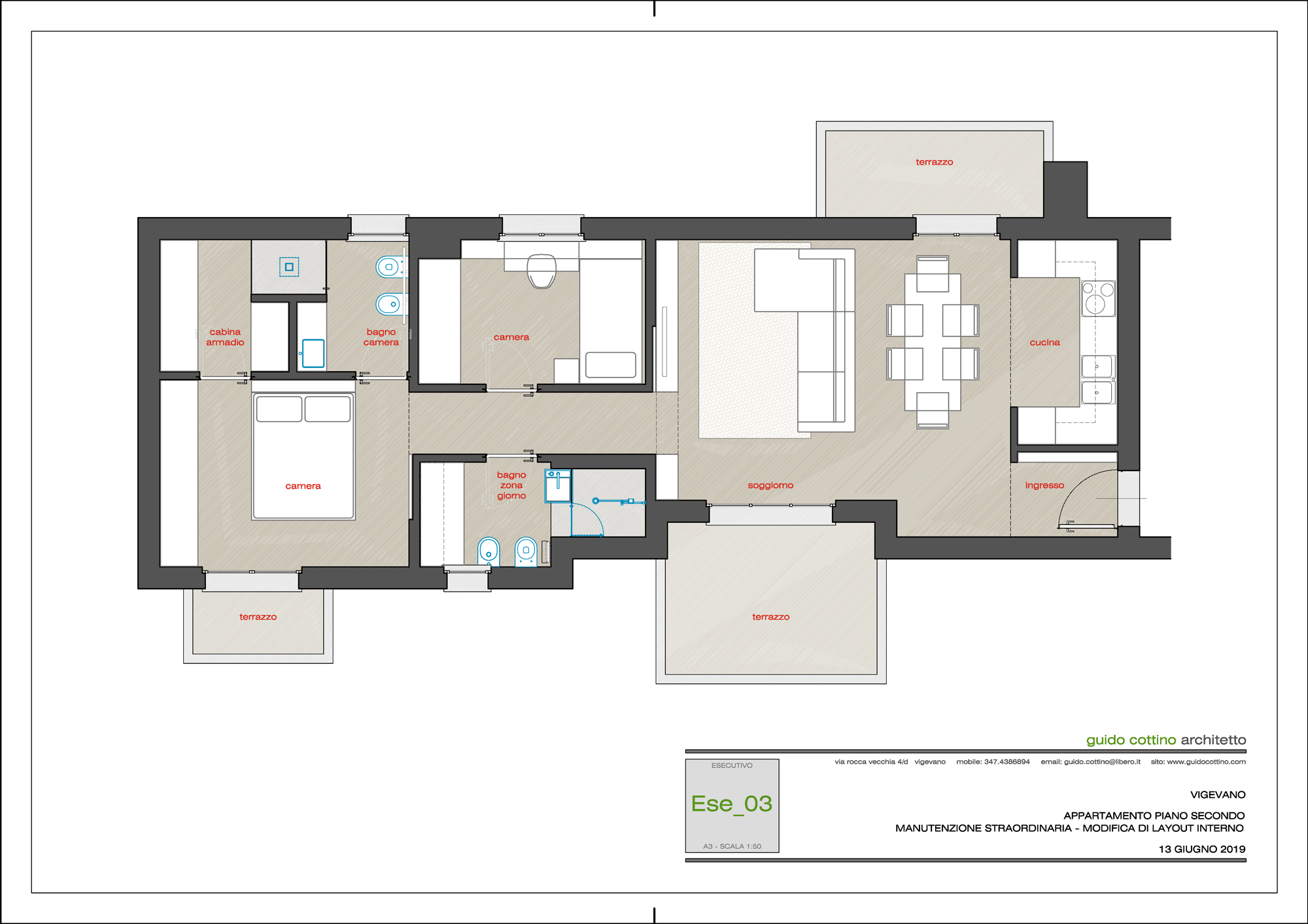
Ristrutturazione appartamento a Vigevano

Appartamento ristrutturato a Vigevano nel 2019 con l'obiettivo di ottimizzare ogni spazio con soluzioni intelligenti. Arredi su misura e dettagli studiati con cura hanno reso gli ambienti più funzionali senza rinunciare allo stile.
Il servizio fotografico è realizzato da Matteo Felici
Tipologia: Residenziale
Anno: 2019

Scopri gli altri progetti

Nuovo appartamento a Pavia

2021 –
Residenziale

Ristrutturazione appartamento a Milano

2020 –
Residenziale

Ampliamento villa a Vigevano

2018 –
Residenziale