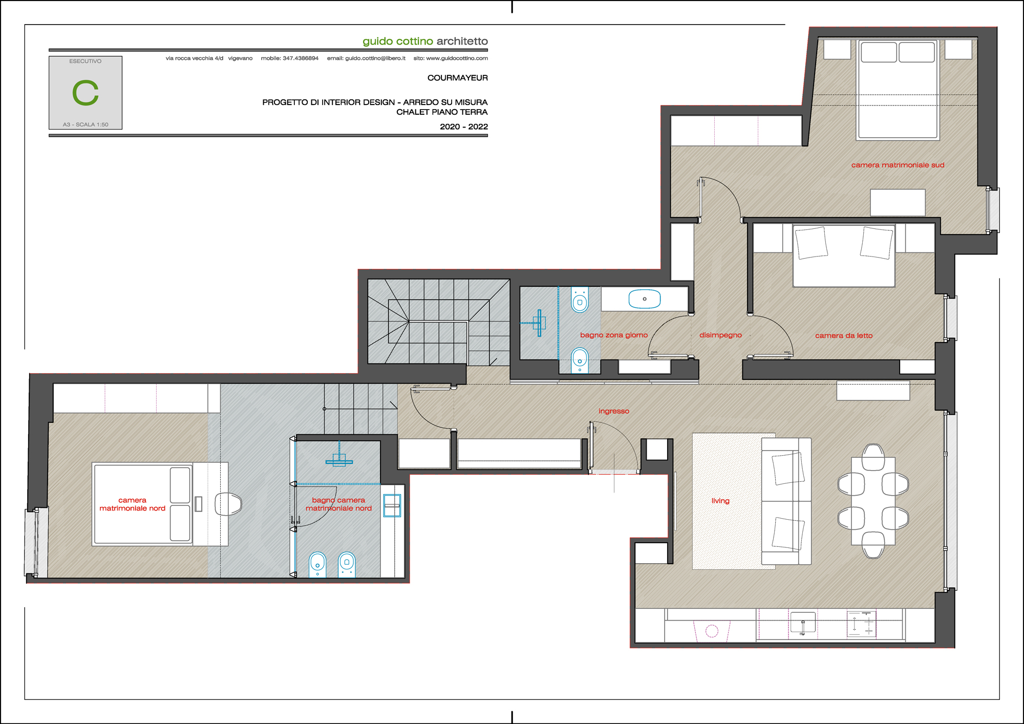
Appartamento a Courmayeur

Un appartamento progettato per il comfort, con soluzioni studiate su misura per rendere gli spazi fluidi e adatti alla condivisione nella zona giorno e alla privacy nella zona notte. Una casa per rilassarsi ed ospitare con garbo.
Il servizio fotografico è realizzato da Matteo Felici
Tipologia: Residenziale
Anno: 2022

Scopri gli altri progetti

Villetta a Gravellona Lomellina

2023 –
Residenziale

Bilocale a Milano

2021 –
Residenziale

Monolocale a Milano

2018 –
Residenziale